It’s been about five years since the Snoqualmie Valley School Board began exploring the option of rebuilding Mount Si High School. Critics said it wasn’t possible. There wouldn’t be enough parking. It was too expensive. It would take too long.
The district brought in NAC Architecture to explore the possibilities. Demographers studied capacity issues. By late 2014 the school board approved a $244 million bond – with $188 million earmarked for the high school rebuild project – for the February 2015 ballot. Voters approved it at 62%.
A High School Visioning Committee launched. By 2016 a design was approved. That summer the front parking lot closed and the large portable pod was moved to the Freshman Campus with a large crane. The front parking lot and ball fields were cleared and graded. Ground stabilization work then began to meet strict earthquake code for the large, raised 3-story school.
Framing of the 350,000 sq. ft. school with capacity for 2,300 students began in summer 2017.
Flash forward one year.
Walking up the dusty slope that will soon become a large staircase to the school’s main entrance, you can envision what it will be like in fall 2019 when students walk into their new high school for the first time.


There’s a lot to still be done, but according to Construction Project Manager Clint Marsh, the large project is on schedule. Currently they have about 160 workers on site daily, which has all been carefully orchestrated to avoid overlaps, which could lead to cost overruns.
The district said the new school will be extremely secure, with its few entry points and raised design playing key roles. Marsh said the front entry area will also have locking doors at one end where students’ ID cards will allow them access to the rest of the building. Visitors will be able to access the front office in this main entry area, but will require a secure check procedure before being allowed access to other areas.
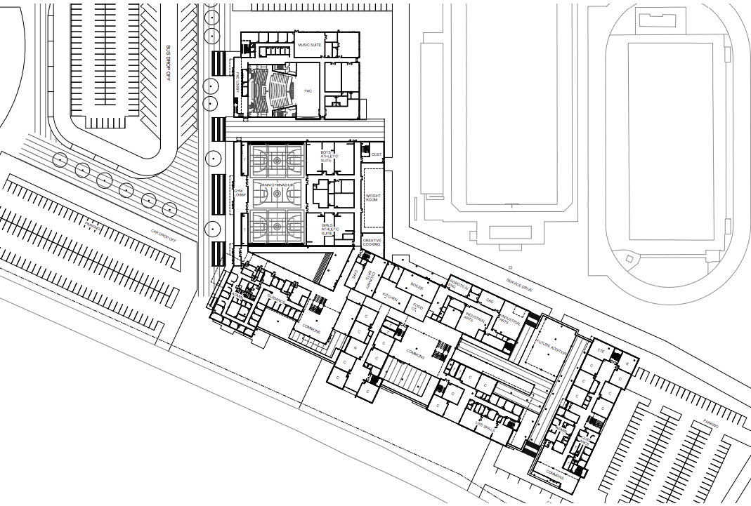
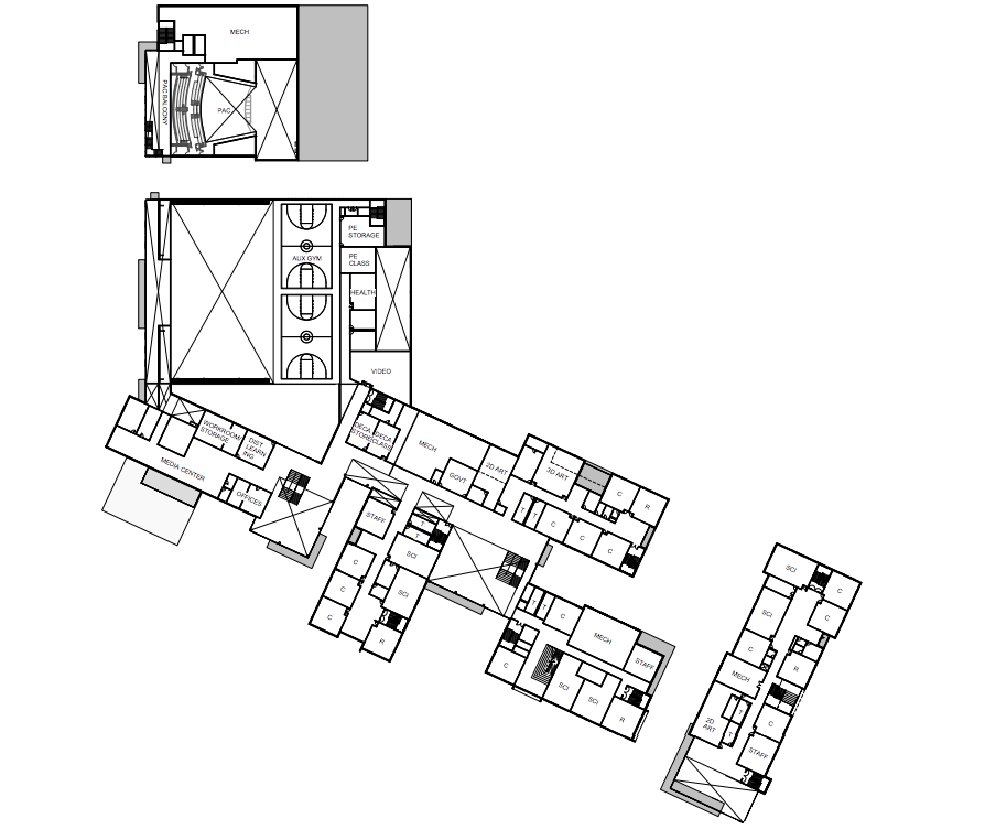
Off of this main entrance will be doors that access the large gymnasium which can also be closed off, allowing it to be a separate entity and rentable for tournaments and community events. The gym will also have its own main entrance flanked by a large exterior staircase. Eventually on the other side of the gym will be the new performing arts center which will hold music classrooms and seating for 700.
How big is the new gym? Big. The lower main gym can be split off into three basketball courts – or just one court when the bleachers are pulled out. Those bleachers will hold 2400 people. Completing the main floor of the gym are locker rooms, a weight room, a sports medicine room, a training room and coaches/teachers offices. Travel upstairs and you’ll find an upper gymnasium – the equivalent of two basketball courts. Near the upper gym you’ll also find a mat room where wrestlers, gymnasts and cheerleaders can train.

Back inside the school: the main entry area includes the front office, administrators offices, conference rooms, etc. Near this area is another common area where counseling offices are located. Go upstairs and you’ll enter the open, multimedia/library area with floor to ceiling windows with mountain views, tons of natural light and spots for students to gather.
Walk down the wide hallways – much wide than the current MSHS hallways – and you’ll find yourself in another large, multi-level open area – complete with a unique cascading staircase – where the kitchen and cafeteria area is located. There will be a section with prepared food and two other areas where students can purchase prepackaged food options. In addition, there will be lots of areas for eating, studying, hanging out. This area is also flanked by a wall of windows overlooking the mountains.

Off of this large common area are classroom wings complete with more wide hallways. All classrooms contain multiple exterior windows and most have three windows into the hallways bringing natural light into the interior spaces. The hallways have ‘breakout space’ for students and a small room referred to as a ‘think tank’ also for student use. The laboratory classrooms are double-sized with a small room connecting them that serves a prep space.

The freshman campus building gives the best idea of what the completed building will look like. This ‘Building A’ was the first one framed and thus, is the most complete. Construction has followed a sequence so that different construction crews can be working simultaneously, just in different ‘buildings’ of the new high school.
The freshman campus building is separate, but still connected to rest of the school. It has its own drop-off area, entrance and parking lot. When freshmen have classes in other portions of the school – like music, PE, CTE – they walk out a side entrance and through an enclosed plaza area to access the rest of the school. The freshmen campus also has its own multi-level common area complete with a cafeteria(food will be prepared in the main kitchen and brought in), study, gathering areas – again flanked by floor to ceiling windows and views of Mount Si.

The school will have an underground parking area to hold about 400 cars. Students parking here can use an elevator to access the school or enter an enclosed courtyard with stairs that access the school’s main entry area.
There is a large CTE area of the new school, complete with industrial wood and metal shops. This is also where construction management courses will be taught. The shop areas will have glass walls, something Marsh said was specifically designed to encourage student interest in other CTE courses going on around them. On the third floor of this area will be a large rooftop greenhouse, with the horticulture classroom just inside.


Behind the school, the main entrance to Wildcat Stadium will eventually be relocated to the opposite side of the concession stand.
Mechanical systems for a school of this size – which Marsh believes might be the largest in the area on a per square footage basis – are no small feat. There are large mechanical rooms throughout the school containing multiple furnaces, large vents, ductwork and massive pipes that power the heating and cooling systems.

The new school will also have multiple outdoor spaces and courtyards framed by built-in planters and seating areas. The architects stated during design conception that they wanted to create a feeling of not realizing you were in an elevated space, similar to that of the High Line Park in New York City.
So how will all of this be finished in the coming year? In February 2019 the current auxiliary gymnasium will be demolished. Marsh said this is needed in order to “power up” the new building. All of the newly installed plumbing, heating, electrical systems have to be connected to their main power points. Removing the auxiliary gym will provide the space to make those underground connections.
Then in June 2019, all but Mount Si’s current Performing Arts Center (i.e. the auditorium) will be torn down. Temporary walkways and fencing will be installed so that students can access the auditorium and its classrooms for the 2019-20 school years, which is when a majority of the new school opens.
During the 2019-20 school year, the new Performing Arts Center (PAC) will be constructed where the school’s main gymnasium now stands. The PAC will be the last new building component to be constructed and will be located on the north side of the new gymnasium, with a walkway connecting the two.
New parking lots and new baseball/softball fields will also be constructed during this time, located where the current building now stands. The new multi-use fields will be constructed of field turf for year-round usage and be lighted.





