Si View Community Center is loved by the Snoqualmie Valley community, which is evidenced by the ease at which voters pass bonds to fund and support the Si View Metropolitan Parks District – both facilities and programming needs.
The Si View Metropolitan Parks District was created when King County, due to budget cuts, mothballed and closed the historic facility in 2002. In February 2003, facing a future with no operational pool and community center, the City of North Bend and Fire District 38 asked voters to create and fund a local parks district, which it did with a passage rate of about 72%.
In the decade since Si View Parks was created, nearly every bond it has run has passed with that same kind of ease, including a 2010 $6.7 million capital bond to upgrade the park surrounding the community center and remodel the 75-year old interior of the historic community center.
Historic Snoqualmie Valley Landmark
Si View Community Center, 400 SE Orchard Drive in North Bend, was originally constructed in 1938 as part of FDR’s Depression-era Work Progress Administration. Local resources and labor were used to build the center and small indoor pool.
As the building’s interior is remodeled, careful attention is being paid to the important history contained within the beloved community center and landmark.
Remodeling work started in February, with the project is slated to be finished in June. Si View Parks Recreation Supervisor Minna Rudd said the construction is right on schedule and credited much of it to the contractor, who knew exactly what he was undertaking when remodeling a structure designated as a historical landmark.
Nothing undamaged is being wasted. Thousands of square feet of wood paneling is being carefully removed from walls, sanded, re-stained and re-hung. Workers constantly and meticulously scour piles of lumber to locate just the right “piece of history” to repurpose.
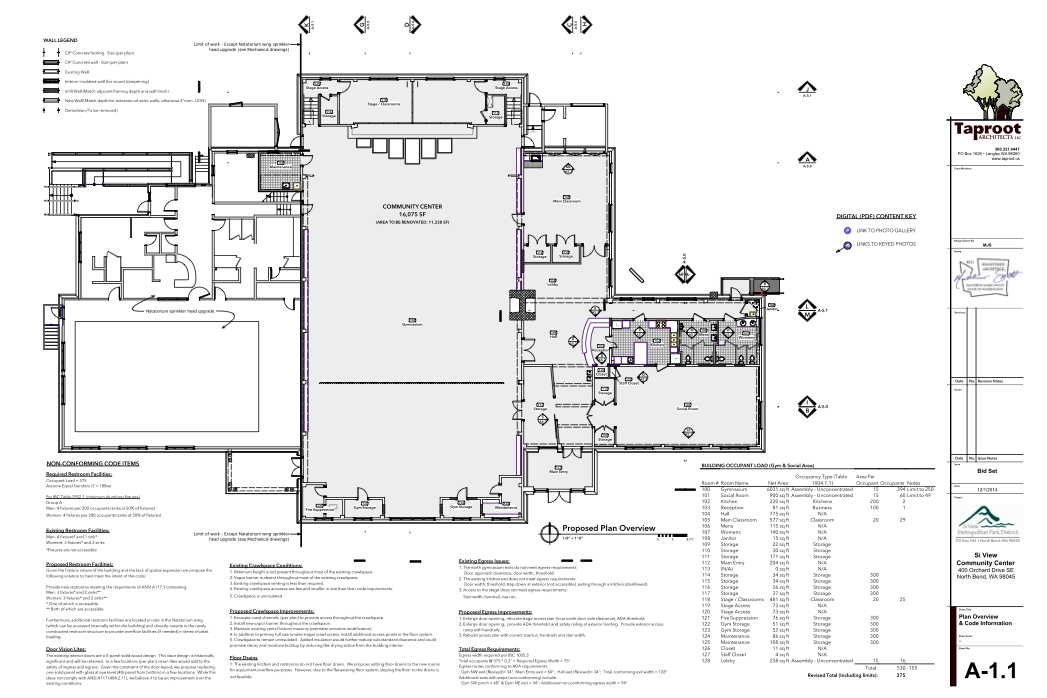
The building cannot be expanded due to its historic status, but the floor plan can be reworked to have better function and flow for Si View’s programming needs.
The kitchen and bathrooms will now be located in spots where they make more sense, providing better access to other rooms used for community center programming and often times, community rental space.
The men’s restroom will no longer be across the building and through the gymnasium. The entry space will be enlarged and more open – and look upon the large historic, two-sided fireplace. Electrical systems are all brand new. New LED lights brighten up the formerly dark gymnasium. ADA ramps will at last be added at all entry points.
The gymnasium will get new hardwood floors, necessary because the old ones had been sanded and re-stained so many times over the past 75 years, nails were popping through. The overhangs located on the perimeter of the gym were removed, making the space feel larger. [The contractor did try to keep the historic overhangs that were once 2nd floor gym seating, but in order to do so (and per building code) large, structural support beams needed to be added, which then posed a hazard to the basketball court.]
The size of the community center will remain the same, but the use of that space will be more streamlined, with no square footage wasted in order to accommodate the growing needs of the community. Doors were relocated, storage areas are now where they make more [functional] sense. The stage will even have a portable wall so it can be used for classes when needed – and to make sure the stage won’t be too dark for those classes, windows will be added to the back wall.
Everything inside the historic Si View Community Center is getting much-needed freshening – walls, paint, windows, the floor plan – all while respecting the history of the building and maintaining its authentic 1930’s feel.
Minna Rudd says Si View Parks will also host a community ‘Salvage Day’ when the project is complete, providing a chance for residents to salvage leftover pieces of the community center remodel – like old beams, wood, fixtures, etc. She said it’s a chance for community members to bring a bit of history to their own homes and create something unique.
Community Center Remodel Project Scope
- Replace/repair deteriorating community center flooring
- Upgrade plumbing and electrical systems to meet current code requirements
- Upgrade fire suppression system to meet current code requirements
- Reconfigure community center interior layout to maximize use of space, improve safety, and allow for ideal traffic flow for community oriented programs
- Improvements to kitchen to better serve program and community needs
- Replace exterior windows with “era” specific, energy-efficient models
- ADA improvements to doorways and restrooms
- Improve storage/maintenance area configuration and access
- Restore gym woodwork where necessary
To learn more about Si View Metropolitan Parks visit www.siviewpark.org



Comments
‘Salvage’ day is now planned for this Thursday, May 7th, when some leftover wood will be available. Contact the District office for exact hours. 425-831-1900.